Negozio in Via Svevo, Mogliano Veneto

123.000 €

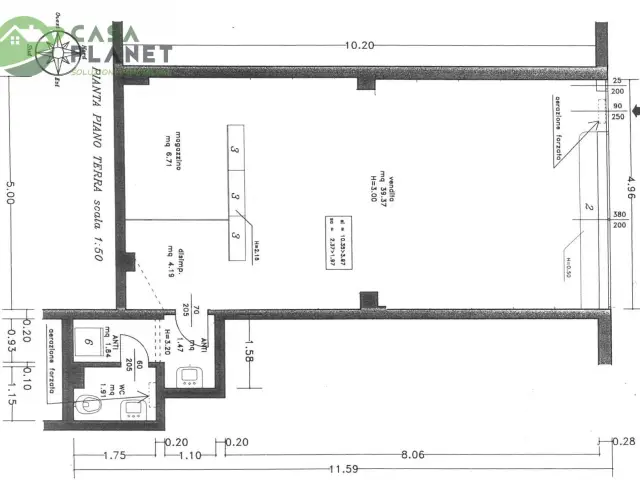
65 m2
1
1

In vendita a Mogliano Veneto, negozio al piano rialzato sito in complesso misto fra commerciale, direzionale e residenziale.

Il negozio gode di una buona visibilità, con porta di accesso diretto da ampio portico coperto e bella vetrata con luce di mt. 3,80 h. visiva mt. 2.
La palazzina è stata dichiarata abitabile a gennaio 1988, il complesso si presenta bene, è stato oggetto di opere di restauro conservativo (dipintura facciate).
La proprietà attuale, al momento del suo acquisto ha fatto adeguare con rilascio di dichiarazione di conformità gli impianti elettrici nel 2006.
L'immobile è attualmente locato ad una Società che lo sta utilizzando come showroom, il contratto è appena stato prorogato di altri 6 anni e scade il 17/01/2031, alla locazione mensili di €. 600,00, sempre pagata alle date pattuite, senza ritardo alcuno.
Il Conduttore è disposto a continuare con il contratto di locazione, nel caso in cui sia acquistato da un investitore, o anche a lasciare libero l'immobile nel caso in cui serva a chi effettuerà l'acquisto dei muri, dato che ha già altra sistemazione per traslocare la sua attività.

Per informazioni su questo negozio in vendita, chiamare agenzia Casa Planet di Mogliano Veneto, e chiedere del rif. CP484

Caratteristiche immobile

Data immobile

18/02/2026

Contratto

Vendita

Prezzo

123.000 €

Tipologia

Negozio

Superficie

65 m2

Locali

1

Bagni

1

Stato

In buone condizioni

Classe energetica - IPE

E 210 KWH/MQ3

Piani stabile

8

Spese condominiali

300 €

Riscaldamento

Autonomo

Posizione

Ti interessa questo immobile?

Cliccando Invia, dichiaro di aver preso visione dell'informativa privacy

Oppure chiama al numero 041-8940162

Immobili simili
Ufficio in Via Pia, Mogliano Veneto
90.000 €
8080 m2
11 locale
11 bagno
D
Ufficio in Via Macchiavelli, Mogliano Veneto
100.000 €
130130 m2
11 locale
11 bagno
E
Ufficio in Via Macchiavelli, Mogliano Veneto
200.000 €
185185 m2
11 locale
11 bagno
D